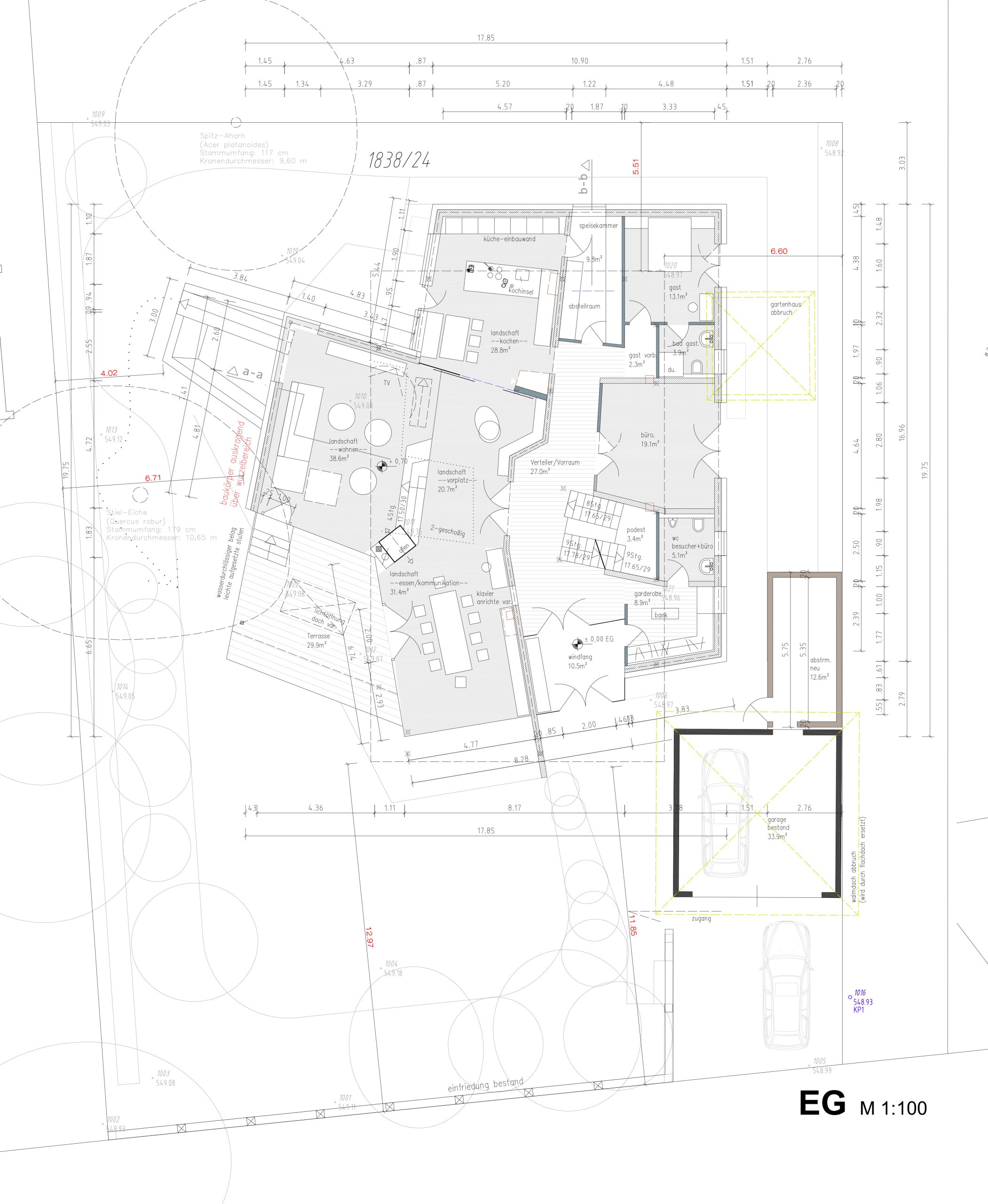
HAUS KOPECKY